我公司兩條5000t/d生產線配套5臺水泥磨。其中一線3臺磨配置為: 1400mm×1000mm輥壓機+V型選粉機(JVX2500)+Φ4.2m×13m球磨機開路系統;二線2臺磨配置為:1600mm×1400mm輥壓機+V型選粉(JVX3000)+Φ4.2m×13m球磨機開路系統;生產P·O42.5水泥,比表面積為350m2/kg±15m2/kg時,設計臺時產量一線為140t/h,二線為160t/h。自2009年1月投產后,磨機臺時產量一直不理想,粉磨電耗較高。2014年10月冬季大修時,對一、二線磨機系統進行了一系列工藝技術改造,改造后磨機臺時產量大幅提高,超過了設計指標。
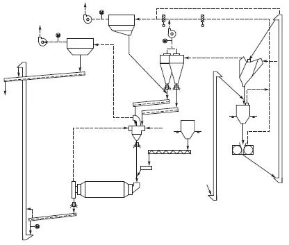
1 工藝流程水泥粉磨系統工藝流程見圖1。
圖1 改造前水泥粉磨系統工藝流程示意
2 主要問題
1)配料站入輥壓機物料有4種,分別為熟料、石灰石、磷石膏和干爐渣,綜合水分較小,在0.2%左右(主要是磷石膏水分),物料過輥壓機時不能有效形成料餅。
2)輥壓機喂料裝置通過口太小,只有1500mm×280mm,不能滿足過飽和喂料要求。兩側饋入板磨損嚴重,存在邊緣效應。
3)輥壓機輥子磨損嚴重,深處約15mm,影響擠壓效果。
4)緩沖倉內物料存在離析現象,導致輥面磨損異常偏斜。
5)入V型選粉機下料溜子分料不均,V型選粉機內部不能形成均勻料幕。
6)球磨機內部隔倉板篦縫被變形研磨體堵塞嚴重,導致物料從通風圓通過。拉風大時,易造成出磨水泥細度跑粗;拉風小時,磨頭經常出現正壓。
7)磨機二、三倉研磨能力不足,磨內物料流速過快,出磨水泥比表面積不合格。
8)輥壓機系統袋除塵器收塵灰從高效選粉機一側下料口送入,使得選粉機兩側喂料不均,電流波動大,入庫水泥質量波動大。
3 改造措施
1)調整前配料站入輥壓機的4種物料配比(以生產P·O42.5水泥為例)為:熟料81%、石灰石6%、磷石膏1.5%和干爐渣3%(另外2種粉煤灰3%和脫硫石膏5.5%不經過輥壓機直接入磨),現將干爐渣改為添加3%的濕爐渣(水分為20%左右),使入輥壓機物料綜合水分達到0.8%,增強輥壓機做功效果。
2)將輥壓機喂料裝置通過口增大到1500mm×330mm,恢復兩側饋入板(見圖2),保證過飽和喂料,出輥壓機物料成品量<2mm顆粒占71.49%。其粒度分布見表1。
圖2 輥壓機喂料裝置通過口及饋入板
表1 改造后出輥壓機物料粒度分布 %

3)輥壓機輥子在線堆焊,修復磨損筋條,保持輥面完整。
4)將緩沖倉內分料裝置由“圓錐體”改為“平面圓盤”,并將入緩沖倉下料溜子加長1m,加長后下料溜子到分料圓盤的距離縮短為0.5m,實現中心位置入料,使配料站新鮮物料與V型選粉機回料充分混合,大程度緩解了倉內物料離析。
5)將V型選粉機下料溜子改為四通道下料方式,保證物料在V型選粉機內部形成均勻料幕(見圖3),提高選粉效果,預粉磨系統成品物料比表面積可提高到190m2/kg以上。
圖3 V型選粉機下料溜子內的下料方式
6)磨機研磨體用振動篩嚴格篩撿,淘汰不合格研磨體;人工清理隔倉板篦縫,保證磨內每條篦縫暢通,要求達到“料走篦縫,風走通風圓”,避免調風時細度跑粗或磨頭冒正壓。清理檢修后,磨主機電流由345~350A上升到355~360A,磨尾壓力由-600~-800Pa降低到-400~-600Pa。7)調整磨內研磨體級配,提高磨機各倉填充率,降低平均球徑,增大研磨面積,從而降低物料流速,提高出磨水泥比表面積。改造前后磨內研磨體級配情況見表2(磨機設計研磨體大裝載量235t,調整后裝載量為228t,符合設計要求)。
表2 改造前后磨內研磨體級配情況

8)因輥壓機系統袋除塵器收塵灰比表面積在300m2/kg以上,具備直接入磨條件,將收塵灰不經選粉機直接接入磨頭,既保證選粉機兩側喂料均勻,減小電流波動,又提高了入庫水泥質量的穩定性。
4 改造效果
5號磨改造前后各項工藝指標對比見表3。
表3 改造前后各項指標及水泥性能
從表3可以看出,改造后生產P·O42.5水泥時磨機臺時產量提高30t/h,電耗降低3.5kWh/t,細度明顯變細,水泥標準稠度用水量增加,強度提高1~1.5MPa,增產節能效果顯著。
5 總結
經過一年多的摸索,在對一、二線5臺磨機工藝管理中,總結出了一套符合開路磨系統運行及檢修的經驗。
1)及時關注入輥壓機熟料易磨性及溫度、石灰石粒度和物料綜合水分等,保證輥壓機功耗發揮。
2)定期檢查輥壓機饋入板、側擋板和輥面的磨損程度,緩沖倉內物料離析和V型選粉機內部分料情況,提高預粉磨系統運行可靠性。
3)開路磨機存在磨內物料流速快、細度易跑粗等特性,通過調整研磨體級配及填充率,從而降低物料流速,提高出磨水泥比表面積。
4)針對開路磨存在過粉磨現象的特點,添加助磨劑,消除磨內因靜電引起的包球、糊球現象,增強研磨效率,提高磨機產能。
摘自《中國散協水泥工程技術專委會》